Objektart
Adresse
Objektdaten
Informationen
Details
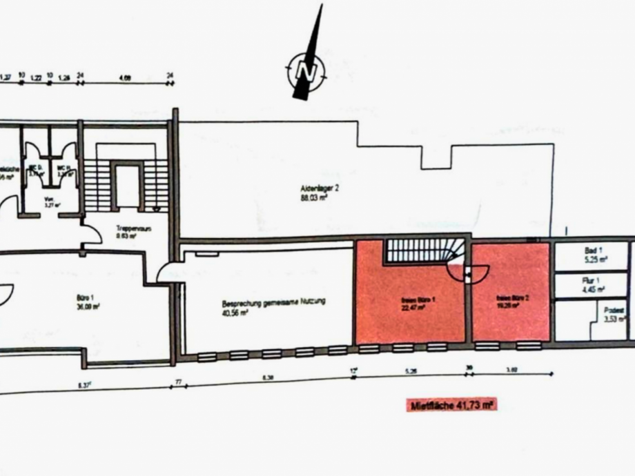
Die angebotene Gewerbefläche umfasst Produktions- und Lagerflächen auf insgesamt 397,39 m². Die Immobilie besteht aus einem Hallen-Gebäude, das sowohl für Produktions- als auch Lagerzwecke geeignet ist. Mit einer Grundstücksfläche dieser Größe bietet das Objekt vielfältige Möglichkeiten für Gewerbetreibende, die auf der Suche nach einer geeigneten Fläche für ihre Produktion oder Lagerung sind.
Die Räumlichkeiten gliedern sich in mehrere Bereiche, die flexibel genutzt werden können. Helle und großzügige Produktionshallen bieten ausreichend Platz für Maschinen und Arbeitsbereiche. Zudem stehen Lagerflächen zur Verfügung, um Waren und Produkte sicher und ordentlich zu lagern. Durch die geschickte Aufteilung der Flächen ist eine effiziente Arbeitsweise möglich, die sowohl Produktivität als auch Komfort fördert.
Zusätzlich verfügt die Immobilie über ausreichend Parkmöglichkeiten für Mitarbeiter und Kunden. Die Lage des Gebäudes ist verkehrsgünstig und gut erreichbar, was den Transport von Waren erleichtert. In der direkten Umgebung befinden sich weitere Gewerbebetriebe und Geschäfte, was das Objekt zu einer attraktiven Option für Unternehmen macht, die eine zentrale Lage mit guter Infrastruktur suchen. Insgesamt bietet diese Immobilie als Produktions- und Lagerfläche optimale Bedingungen für Unternehmen, die auf der Suche nach einer modernen und flexiblen Gewerbefläche sind.
- Gewerbefläche: 397,39 m²
Die Produktions- und Lagerflächen befinden sich in einem Gewerbegebiet im Stadtteil Neuenrade. Der Stadtteil zeichnet sich durch seine industrielle Struktur aus und bietet eine Vielzahl von Gewerbebetrieben, die hier ansässig sind. Die unmittelbare Umgebung ist geprägt von weiteren Gewerbeflächen sowie einigen Wohngebieten. Die Anbindung an das öffentliche Verkehrsnetz ist gut, und es gibt ausreichend Parkmöglichkeiten in der Nähe.
Neuenrade ist eine Stadt im Märkischen Kreis in Nordrhein-Westfalen. Sie verfügt über eine gute Infrastruktur mit Einkaufsmöglichkeiten, Schulen und Freizeiteinrichtungen. Die Stadt bietet zudem eine grüne Umgebung mit zahlreichen Wander- und Radwegen in der näheren Umgebung. Durch die verkehrsgünstige Lage an der Autobahn ist Neuenrade gut an das überregionale Straßennetz angebunden.
Die Region um Neuenrade besticht durch ihre landschaftliche Vielfalt und bietet zahlreiche Erholungsmöglichkeiten. Von hügeligen Landschaften über Wälder bis hin zu Flüssen und Seen gibt es hier eine breite Palette an Naturerlebnissen. Die Nähe zu größeren Städten wie Dortmund und Hagen bietet zudem vielfältige kulturelle und Freizeitangebote. Insgesamt ist die Region um Neuenrade sowohl für Unternehmen als auch für Einwohner attraktiv.
Der Makler weist darauf hin, dass die von ihm weitergegebenen Objektinformationen vom Vermieter bzw. von einem vom Vermieter beauftragten Dritten stammen und von ihm, dem Makler, auf ihre Richtigkeit nicht überprüft worden sind. Es ist Sache des Kunden, diese Angaben auf ihre Richtigkeit hin zu überprüfen. Der Makler, der diese Informationen nur weitergibt, übernimmt für die Richtigkeit keinerlei Haftung.
Ich bin damit einverstanden, dass mir Karten von Google angezeigt werden. Es gelten die Datenschutzbedingungen von Google (https://policies.google.com/privacy).
Ich bin einverstanden