Ihre ideale Kapitalanlage: Mehrfamilienhaus in Innenstadt-Lage von Balve
Objektart
Adresse
Objektdaten
Informationen
Ausstattung
Details
Dieses Mehrfamilienhaus aus dem Jahr 1929 überzeugt durch seinen typischen Altbau-Charakter und eine massive, langlebige Bauweise. Mit einer Gesamtwohnfläche von ca. 175 m² verteilt auf 4 Parteien bietet die Immobilie vielfältige Nutzungsmöglichkeiten - ideal als renditestarkes Anlageobjekt.
Das Gebäude verfügt über zwei Etagen mit großem Balkon sowie ein ausgebautes Dachgeschoss und präsentiert sich in einem altersgemäßen Zustand. Das Walmdach unterstreicht den klassischen Stil des Hauses, während die gasbetriebene Heizung für eine effiziente Wärmeversorgung sorgt. Eine Garage und ein Keller bieten zusätzlichen Stauraum für die Mieter.
Zuletzt wurde das Gebäude im Jahr 2022 modernisiert - eine vollständige Liste der Sanierungsmaßnahmen finden Sie in der Ausstattungsbeschreibung.
Das Mehrfamilienhaus ist teilvermietet. Die Dachgeschosswohnung ist aktuell frei und wir sind bereits beauftragt, diese zu vermieten. Damit eignet sich die Immobilie hervorragend als solide Kapitalanlage mit stabilen Erträgen und erzielt attraktive Mieteinnahmen von bis zu 14.580 Euro p.a. nach Vermietung der Dachgeschoss-Wohnung.
Ein gepflegtes Altbau-Mehrfamilienhaus mit Charakter, solider Substanz und stabiler Vermietungslage. Ideal für Kapitalanleger, die eine nachhaltige Investition mit Rendite- und Entwicklungspotenzial suchen.
Interessiert? Dann sichern Sie sich jetzt Ihren Besichtigungstermin!
Wir freuen uns auf Sie - Ihr Schäfer-Team
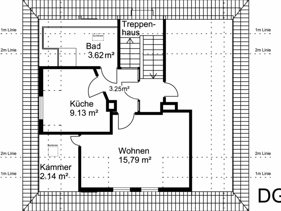
Wohnung DG: ca. 38m² (Mietersuche bereits beauftragt)
Wohnung OG: ca. 72m² ( vermietet)
Wohnung EG rechts: ca. 32m² (vermietet)
Wohnung EG links: ca. 33m² (vermietet, Gewerbe)
Potentielle Mieteinnahmen nach Neu-Vermietung der DG-Wohnung: 14.580,-EUR p.a.
Sanierungen
- 2009 Wohnung OG. Bad komplett, Elektroarbeiten.
- 2009 Neue Holz-Fenster außer Westseite.
- 2010 Wohnung DG. Wohnungseingangsbereich komplett neu. Wohnungstür. Holzfußböden Küche
und Flur abgeschliffen.
- 2014 Wohnung DG. Bad komplett neu, Elektro- und Malerarbeiten.
- 2016 Hof gepflastert, Drainage neu.
- 2018 Wohnung EG rechts. Einbauküche, Eingang Bad verlegt. Bad komplett neu. Elektro- und
Malerarbeiten.
- 2020 Hintere Außentür neu.
- 2021 Wohnung OG. Fußböden neu, Elektro- und Malerarbeiten.
- 2022 Büro EG links. Wasseranschluss für Teeküche. Hebeanlage.
Sanierungen vor 2005
- 1995 Fenster Westseite (Kunststoff).
- 1998 Heizung neu.
- 1999 Dach neu eingedeckt und gedämmt. Dachrinnen und Entwässerung neu.
- 2000 Terrassentür neu.
- 2000 Fassade neu gestrichen.
Das Mehrfamilienhaus befindet sich in zentraler Lage von Balve im Märkischen Kreis. Die Innenstadt mit zahlreichen Einkaufsmöglichkeiten, Gastronomie, Dienstleistern sowie öffentlichen Einrichtungen wie Schulen und Apotheken ist in wenigen Gehminuten erreichbar.
Durch die gute Verkehrsanbindung - u. a. über die Bundesstraßen B229 und B515 - sowie die Nähe zur Bahnlinie der Hönnetalbahn ist eine schnelle Erreichbarkeit benachbarter Städte gegeben.
Zudem bietet die Umgebung eine ausgewogene Mischung aus Stadtleben und Nähe zur Natur: Grünflächen, Wälder sowie Freizeit- und Erholungsangebote in der Region sorgen für eine angenehme Wohnlage.
Der Makler weist darauf hin, dass die von ihm weitergegebenen Objektinformationen vom Vermieter bzw. von einem vom Vermieter beauftragten Dritten stammen und von ihm, dem Makler, auf ihre Richtigkeit nicht überprüft worden sind. Es ist Sache des Kunden, diese Angaben auf ihre Richtigkeit hin zu überprüfen. Der Makler, der diese Informationen nur weitergibt, übernimmt für die Richtigkeit keinerlei Haftung.
Energieausweis (Bedarfsausweis)
195,80 kWh / (m²*a) Endenergiebedarf
195,80 kWh / (m²*a) Endenergiebedarf
195,80 kWh / (m²*a) Endenergiebedarf
Weitere Informationen
| Wesentlicher Energieträger | Gas |
| Energieausweis Ausstelldatum | 2020-06-05 |
| Energieausweis gültig bis | 04.06.2030 |
| Energieausweis Jahrgang | ab dem 1.5.2014 |
| Energieverbrauch für Warmwasser | nicht enthalten |
| Energieausweis Werteklasse | F |
| Energieausweis Baujahr | 1929 |
| Energieausweis Gebäudeart | Wohngebäude |
| Befeuerung | Gas |
Ich bin damit einverstanden, dass mir Karten von Google angezeigt werden. Es gelten die Datenschutzbedingungen von Google (https://policies.google.com/privacy).
Ich bin einverstanden